Offices page 2
(a selection)
Building for mixed use
Sint Maarten
Ara Hill Top Residence Curaçao
Curacao Airport Holding
(design)
Bureau Telecommunicatie en Post Curaçao (design)
Design Orco Bank Gaito Curaçao (design)
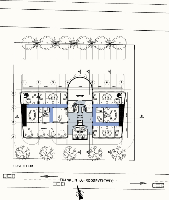
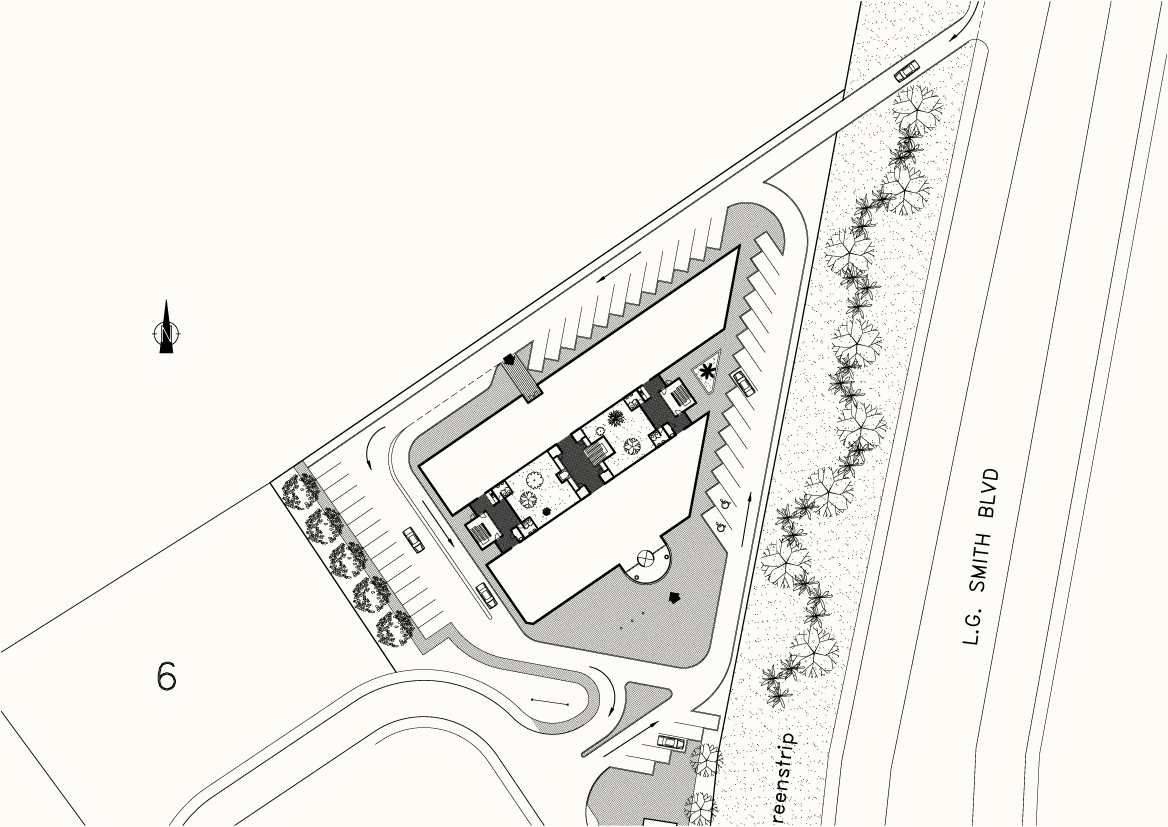
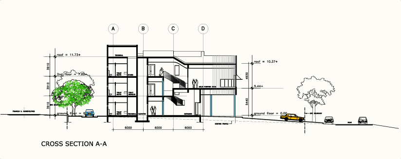
Aruba Bank Office Park
(design)
Windward Roads Sint Maarten
Network Operations Antelecom Curaçao
Politiewacht Rincon Bonaire