Schools
(a selection)
Nursing School IFE Curaçao
Kleuter- en Basisschool Nikiboko Bonaire (Primary School)
Dr. Albert Schweitzer VSBO Parera Curaçao
Secondary School KAP Curaçao
Pre-School Sint Eustatius
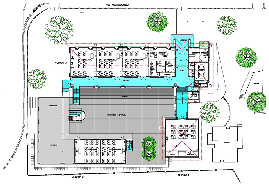
Brede School Bonaire
(design)
Concept PSC Masterplan 2004
VSBO Parera